Description
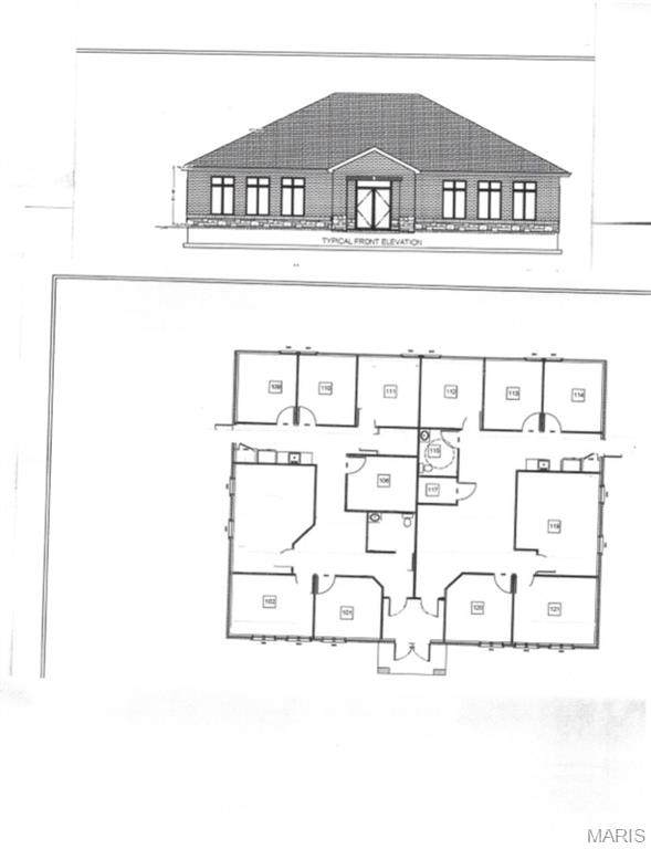
Great opportunity to lease brand new construction office space in a prime commercial building complex on very high traffic road in the heart of Wentzville. This beautiful unit is full brick and stone front, visible from West Meyer Rd. Large covered entrance with common entry foyer. Space is approx. 1600 sq. ft and should be available 10/1/2025. As you enter there is a reception area very large, open work area. 5 Private offices, conference room, large handicap accessible restroom and a storage area. Zoned C-1 Neighborhood Commercial, and ideal for personal service, stock broker, real estate office, insurance, financial planning, dentist office, title company, attorney's office, psychiatric and/or psychological services, personal service use, including art studio, barber shop, beauty shop and much more! Owner is looking for minimum 3 year or more lease at $2400 a month for the first year, second year includes 3% increase. Unit is currently under construction and should be ready 10/1/25. Photo is representation of a completed office villa. Blackline drawing shows both sides of office unit, left side (126) is still available for rent.
-
0BEDS
-
0.28ACRES
-
0BATHS
-
01/2 BATHS
School Ratings & Info
Description
Great opportunity to lease brand new construction office space in a prime commercial building complex on very high traffic road in the heart of Wentzville. This beautiful unit is full brick and stone front, visible from West Meyer Rd. Large covered entrance with common entry foyer. Space is approx. 1600 sq. ft and should be available 10/1/2025. As you enter there is a reception area very large, open work area. 5 Private offices, conference room, large handicap accessible restroom and a storage area. Zoned C-1 Neighborhood Commercial, and ideal for personal service, stock broker, real estate office, insurance, financial planning, dentist office, title company, attorney's office, psychiatric and/or psychological services, personal service use, including art studio, barber shop, beauty shop and much more! Owner is looking for minimum 3 year or more lease at $2400 a month for the first year, second year includes 3% increase. Unit is currently under construction and should be ready 10/1/25. Photo is representation of a completed office villa. Blackline drawing shows both sides of office unit, left side (126) is still available for rent.
Listing information © 2025 Mid America Regional Information Systems, Inc. Information from third parties deemed reliable but not verified. Data last update 2025-11-14T23:39:22.707.
Hartmann Realtors Inc.: (618) 344-7900

Listing provided courtesy of Legacy Realty Group: 314-200-2640. Listing information © 2025 Mid America Regional Information Systems, Inc.