Description
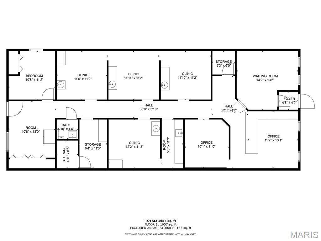
Take advantage of this fully operational dental practice along with the real estate. This building boasts four spacious clinic rooms, a welcoming reception area, and state-of-the-art dental equipment, including dental chairs, advanced imaging technology, sterilization units, and more. This establishment offers high visibility and easy access, ensuring a steady flow of clients. The practice currently operates 24 hours per week and is not only servicing existing patients but is also accepting new ones. Whether you are a recent dental school graduate looking to start your career or an established practitioner seeking to expand your business, this is the perfect setting to thrive. The seller is committed to ensuring a smooth transition and is willing to provide assistance throughout the process. Don't miss out on this exceptional chance to own a successful dental practice. Contact us today for more information and to schedule a viewing. Location: Hwy/Interstate Frntg
-
0BEDS
-
0.37ACRES
-
0BATHS
-
01/2 BATHS
-
1,657SQFT
-
$120$/SQFT
School Ratings & Info
Description
Take advantage of this fully operational dental practice along with the real estate. This building boasts four spacious clinic rooms, a welcoming reception area, and state-of-the-art dental equipment, including dental chairs, advanced imaging technology, sterilization units, and more. This establishment offers high visibility and easy access, ensuring a steady flow of clients. The practice currently operates 24 hours per week and is not only servicing existing patients but is also accepting new ones. Whether you are a recent dental school graduate looking to start your career or an established practitioner seeking to expand your business, this is the perfect setting to thrive. The seller is committed to ensuring a smooth transition and is willing to provide assistance throughout the process. Don't miss out on this exceptional chance to own a successful dental practice. Contact us today for more information and to schedule a viewing. Location: Hwy/Interstate Frntg
Related Properties
Listing information © 2025 Mid America Regional Information Systems, Inc. Information from third parties deemed reliable but not verified. Data last update 2025-11-18T14:39:22.113.
Hartmann Realtors Inc.: (618) 344-7900

Listing provided courtesy of Property Peddler, Inc: 618-473-2500. Listing information © 2025 Mid America Regional Information Systems, Inc.