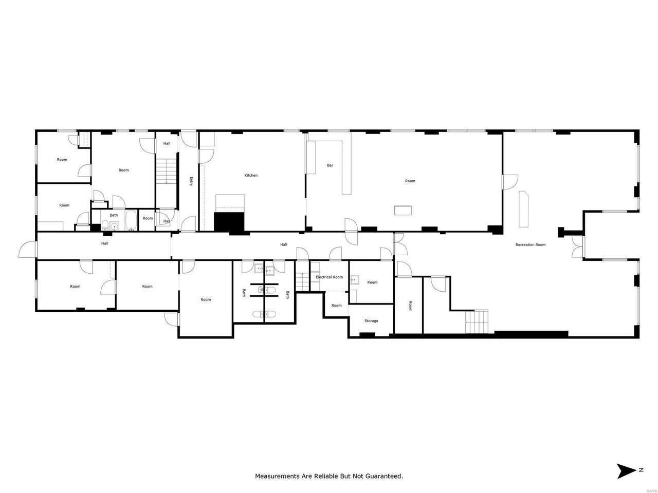
Description
With over 20,000+ sq ft this 1924 three story building has +/- 6900 Sq ft per floor. This downtown property is being advertised with the parcel the building sits on plus an optional second parcel of land that could enhance the overall plans/outcome of the building's potential. The building started as a motel. Lastly used as efficiency apartments before the fire. The building has an elevator that goes from the basement to the 3rd floor. The are two sets of stairs that provide the same access to all 4 levels. Main floor has a lobby area, dining hall, kitchen/serving area, a couple bathrooms, plus several other rooms that could be used in various ways. See photos for roughly estimated AI layouts of each level. The upper 2 levels have numerous rooms with endless options to divide and split up for offices or tenants. The two basement areas could be used for storage, utilities, and equipment. The floors are poured concrete with 1st floor 19" pour, 2nd floor 15", & 3rd floor 11". Location: Downtown
-
0BEDS
-
0.53ACRES
-
0BATHS
-
01/2 BATHS
-
20,700SQFT
-
$43$/SQFT
School Ratings & Info
Description
With over 20,000+ sq ft this 1924 three story building has +/- 6900 Sq ft per floor. This downtown property is being advertised with the parcel the building sits on plus an optional second parcel of land that could enhance the overall plans/outcome of the building's potential. The building started as a motel. Lastly used as efficiency apartments before the fire. The building has an elevator that goes from the basement to the 3rd floor. The are two sets of stairs that provide the same access to all 4 levels. Main floor has a lobby area, dining hall, kitchen/serving area, a couple bathrooms, plus several other rooms that could be used in various ways. See photos for roughly estimated AI layouts of each level. The upper 2 levels have numerous rooms with endless options to divide and split up for offices or tenants. The two basement areas could be used for storage, utilities, and equipment. The floors are poured concrete with 1st floor 19" pour, 2nd floor 15", & 3rd floor 11". Location: Downtown
Related Properties
Listing information © 2025 Mid America Regional Information Systems, Inc. Information from third parties deemed reliable but not verified. Data last update 2025-11-07T18:39:37.477.
Hartmann Realtors Inc.: (618) 344-7900

Listing provided courtesy of Strano & Associates: 618-588-9876. Listing information © 2025 Mid America Regional Information Systems, Inc.